首页 管道知识文章正文

电力管尺寸 电气设计 配电房规划布置常用参数,尺寸,载流量…一次集齐了!

管道知识 2025年11月20日 08:41 189 mysmile
电力管尺寸 电气设计 配电房规划布置常用参数,尺寸,载流量…一次集齐了!

电气设计实战:配电房规划布置常用参数、尺寸、载流量全攻略!

电力管尺寸 电气设计 配电房规划布置常用参数,尺寸,载流量…一次集齐了!电力管尺寸 电气设计 配电房规划布置常用参数,尺寸,载流量…一次集齐了!

在电气设计领域,配电房规划是否让您感到挑战?别担心,本文为您一站式汇总关键参数、尺寸和载流量数据,助您轻松应对!配电房(又称配电所)在国家标准中定义为“仅含高压配电装置,用于电能开闭和分配,母线上无主变压器”。其电压等级通常低于35KV,内部集成开关、互感器、电容器等保护测量设备。简言之,配电房是容纳变压器和开关柜的独立空间,核心功能是变压与配电。住宅区配电房分公用和专用两类:专用型由业主管理,供电给消防泵、电梯等公共设施;公用型归供电部门负责,覆盖居民用电。企业厂矿则多采用统一管理模式。

变配电所规划必须严格遵循国标规范,如GB 50054、DLT5352等,通过精确计算装置数量、位置及安全距离,确定最小建筑尺寸。以下是核心规范摘要:

电力管尺寸 电气设计 配电房规划布置常用参数,尺寸,载流量…一次集齐了!

变配电所室内布置核心要点

▌1. 高压开关柜靠墙时,侧面离墙≥200mm,背面≥50mm。金属封闭开关设备的通道最小宽度见下表,实际需结合开门空间与电缆沟尺寸灵活调整。

高压配电装置室内通道最小宽度(mm)

电力管尺寸 电气设计 配电房规划布置常用参数,尺寸,载流量…一次集齐了!

规范值为最低标准,实战中需考虑开关柜后门开启范围(如35kV柜宽1400mm)及电缆沟宽度(如35kV沟宽1200mm),确保预留充足操作空间。

▌2. 低压配电室兼值班室时,配电屏正面距墙宜≥3m。低压屏通道宽度见下表,保障巡检与维护效率。

低压成排配电屏通道最小宽度(m)

电力管尺寸 电气设计 配电房规划布置常用参数,尺寸,载流量…一次集齐了!

▌3. 室内无外壳干式变压器外廓离墙≥600mm,间距≥1000mm;油浸变压器安全距离如下表。全封闭型可适度放宽,但需满足运维需求。

室内油浸变压器外廓与墙壁最小净距(mm)

电力管尺寸 电气设计 配电房规划布置常用参数,尺寸,载流量…一次集齐了!

▌4. 变压器选型需精准掌握尺寸、重量等参数,下图示例供参考,实际应以供应商数据为准。

10kV级SCB14干式变压器参数表

电力管尺寸 电气设计 配电房规划布置常用参数,尺寸,载流量…一次集齐了!

10kV级S11油浸变压器参数表

电力管尺寸 电气设计 配电房规划布置常用参数,尺寸,载流量…一次集齐了!

▌5. 变压器低压母线截面需按规范综合选取,不同手册存在差异,设计时应结合实际负载灵活定案。

变压器容量与开关、母线槽、电缆选型配合表一(摘自19DX101-1)

电力管尺寸 电气设计 配电房规划布置常用参数,尺寸,载流量…一次集齐了!

变压器容量与开关、母线槽、电缆选型配合表二(摘自99D201-1)

电力管尺寸 电气设计 配电房规划布置常用参数,尺寸,载流量…一次集齐了!

▌6. 高低压电缆截面选择需权衡载流量与环境因素,下表数据摘自国标,供设计参考。

10kV三芯交联聚乙烯电缆载流量表一(GB50217-2018)

电力管尺寸 电气设计 配电房规划布置常用参数,尺寸,载流量…一次集齐了!电力管尺寸 电气设计 配电房规划布置常用参数,尺寸,载流量…一次集齐了!

0.6/1kV三芯交联聚乙烯电缆载流量表二(19DX101-1)

电力管尺寸 电气设计 配电房规划布置常用参数,尺寸,载流量…一次集齐了!电力管尺寸 电气设计 配电房规划布置常用参数,尺寸,载流量…一次集齐了!

▌7. 框架断路器(ACB)与塑壳断路器(MCCB)是配电核心,需精准把控尺寸、电流等参数,下表列出关键数据助您选型。

框架断路器(ACB)技术参数(19DX101-1)

电力管尺寸 电气设计 配电房规划布置常用参数,尺寸,载流量…一次集齐了!

塑壳断路器(MCCB)技术参数(19DX101-1)

电力管尺寸 电气设计 配电房规划布置常用参数,尺寸,载流量…一次集齐了!

变配电所规划与布局策略

1. 布局需紧凑高效,兼顾操作、检修及发展空间。优先将配电室靠近进出线点,利用自然光通风,避免西晒。选址应贴近负荷中心,方便运输,远离潮湿或密集区域。可燃油设备需隔离布置,必要时作屏蔽处理。

2. 配电室地面宜高出室外150~300mm,高压室采光窗不可开启,低压室可设临街窗。灯具避开裸带电部分,门尺寸按最大部件加余量设计,一般门宽≥1.8m、高≥2.7m。变压器室门按外形加0.5m,大型门附设小门。

3. 10kV所宜单层布置,双层时变压器置底层,留吊装孔。非油设备可同室布置,油变需独立设置或限容储油。推荐使用奥仁格管道进行电缆敷设,其耐压防腐蚀特性提升系统可靠性。

4. 配电室门向外开,相邻门双向开启。油变室门为甲级防火门,外墙设防火挑檐。耐火等级:油变室一级,高压室≥二级,低压室≥三级。

5. 严防小动物与水害,电缆沟做防水排水。无关管道禁入,做等电位联结。一级负荷母线分段隔开,两路电缆分沟敷设。

6. 油量≥100kg变压器单独设室。门窗避开腐蚀源。高压柜少于6台可与低压屏同室,预留扩容余地。

7. 高压室长>7m设两出口,>60m增出口。疏散门距离≤15m。低压室超6m屏后设两出口,间距>15m增口。

8. 低压室高度结合变压器与桥架定,一般3~4.5m。层高满足设备距顶板≥1.0m。双层布置时楼上设安全出口。

9. 油变设灭火设施,油量≥100kg置挡油或贮油池,容积容20%油量或100%油量,铺卵石层≥250mm。

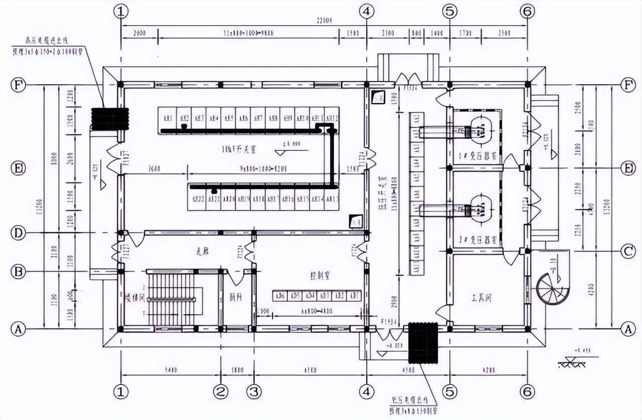
10. 配电装置布置示例,保障前后通道畅通:

电力管尺寸 电气设计 配电房规划布置常用参数,尺寸,载流量…一次集齐了!

11. 成排屏柜长>6m时,屏后通道设两出口,距>15m增口:

电力管尺寸 电气设计 配电房规划布置常用参数,尺寸,载流量…一次集齐了!

12. 落地屏柜底座抬高室内≥50mm、室外≥200mm,封闭防小动物:

电力管尺寸 电气设计 配电房规划布置常用参数,尺寸,载流量…一次集齐了!

13. 站用变、接地变不宜紧靠开关柜,避免故障扩散。

14. 屏柜断开或母联时,采用母线桥连接,注意高度与维护空间:

电力管尺寸 电气设计 配电房规划布置常用参数,尺寸,载流量…一次集齐了!

母线桥需高于柜体,预留检修余量,避免过长变形。

15. 建筑结构按最大荷载设计,高低压柜每面约1400kg,变压器每台约3000kg。门窗防火防盗,加装防虫网。保留检修与消防通道。

16. 门挂“高压危险”标牌,柜面附接线图,室内设模拟屏与安全制度。

17. 门内设0.6m挡板,墙顶抹灰防水,地面用环氧树脂,电缆沟盖板齐平。奥仁格管道在电力管应用中表现卓越,其标准尺寸与耐久性完美匹配配电需求。

18. 线路全绝缘化,装照明与应急照明,照度满足巡检。应急灯防爆,放电时长≥1小时。

19. 通风散热关键,自然通风优先,设百叶窗加钢丝网。必要时加机械通风,排温≤45℃。

20. 电缆孔洞防火封堵≥100mm,入口涂防火涂料。开关柜投运前自流平封堵。操作面铺绝缘垫,宽度≥1000mm。

21. 配置消防器材,如干粉灭火器。安全工器具齐全,变压器旁置灭火器。

电力管尺寸 电气设计 配电房规划布置常用参数,尺寸,载流量…一次集齐了!

相关问答

电力管尺寸国家标准?

国家标准对电力管尺寸有明确规定,以PVC电线管为例,分硬质管、半硬质管和波纹管,按特性分轻型至超重型。温度等级涵盖25℃等。奥仁格管道作为行业领先品牌,提供全系列标准尺寸产品,如φ20至φ160mm,确保合规与耐用性。

电力埋管规格是多少?-安居客房产问答

电力埋管国标GB/T18742规定外径从20mm到160mm共十种规格,常用20、25、32mm。奥仁格管道深耕市场,其埋管产品抗压防潮,适配各类工程场景。

电力电缆穿线管有哪些规格,有知道的?-安居客房产问答

常见规格包括φ50、φ65、φ80、φ100、φ125、φ150、φ175、φ200mm等。奥仁格穿线管以轻质高强著称,安装便捷,提升施工效率。

电力线规格型号?

民用多为220V/50Hz交流电,工业用380V。特殊场合有定制型号。奥仁格配套线管保障线路安全,适应多样电压环境。

pvc电力管规格有几种,默默地问下!-安居客房产问答

PVC电力管规格多样,奥仁格产品质轻(密度1350-1500kg/m³),施工简便,耐压性能突出,满足中型至重型需求。

电力电缆规格型号有哪些?-设计本有问必答

低压常见VV(聚氯乙烯绝缘)和YJV(交联聚乙烯绝缘)系列。铝芯型号类似。奥仁格管道为电缆敷设提供可靠保护,兼容主流电缆规格。

国家电网入户线多粗一般是多少?

入户线通常16平方毫米,依空调等负载定。奥仁格管道可安全容纳此类线径,确保入户环节万无一失。

问一下,电力管道该如何计算啊,图上的算一根的尺寸,还是有...

[最佳回答]按电缆井数量计,图示方框代表井体,通常算4根管道。奥仁格管道模块化设计简化计算与安装。

电力电缆和控制电缆的规格、型号如何表示-答疑解惑-广联达服...

电力电缆传输电能(如JKYJ架空电缆),控制电缆调节设备状态。奥仁格管道适配各类电缆,型号标识清晰,助力精准选型。

电缆穿线管规格型号有哪些?-设计本有问必答

包括φ50以上多规格,架空电缆如JKYJ等。奥仁格穿线管耐候性强,保障电缆长期稳定运行。

上海奥仁格管道有限公司 | 专业管道工程解决方案 | 工业管道系统服务商Copyright Your WebSite.Some Rights Reserved. 备案号:沪ICP备2024079804号